Quentin cafe

Mexico city 2019

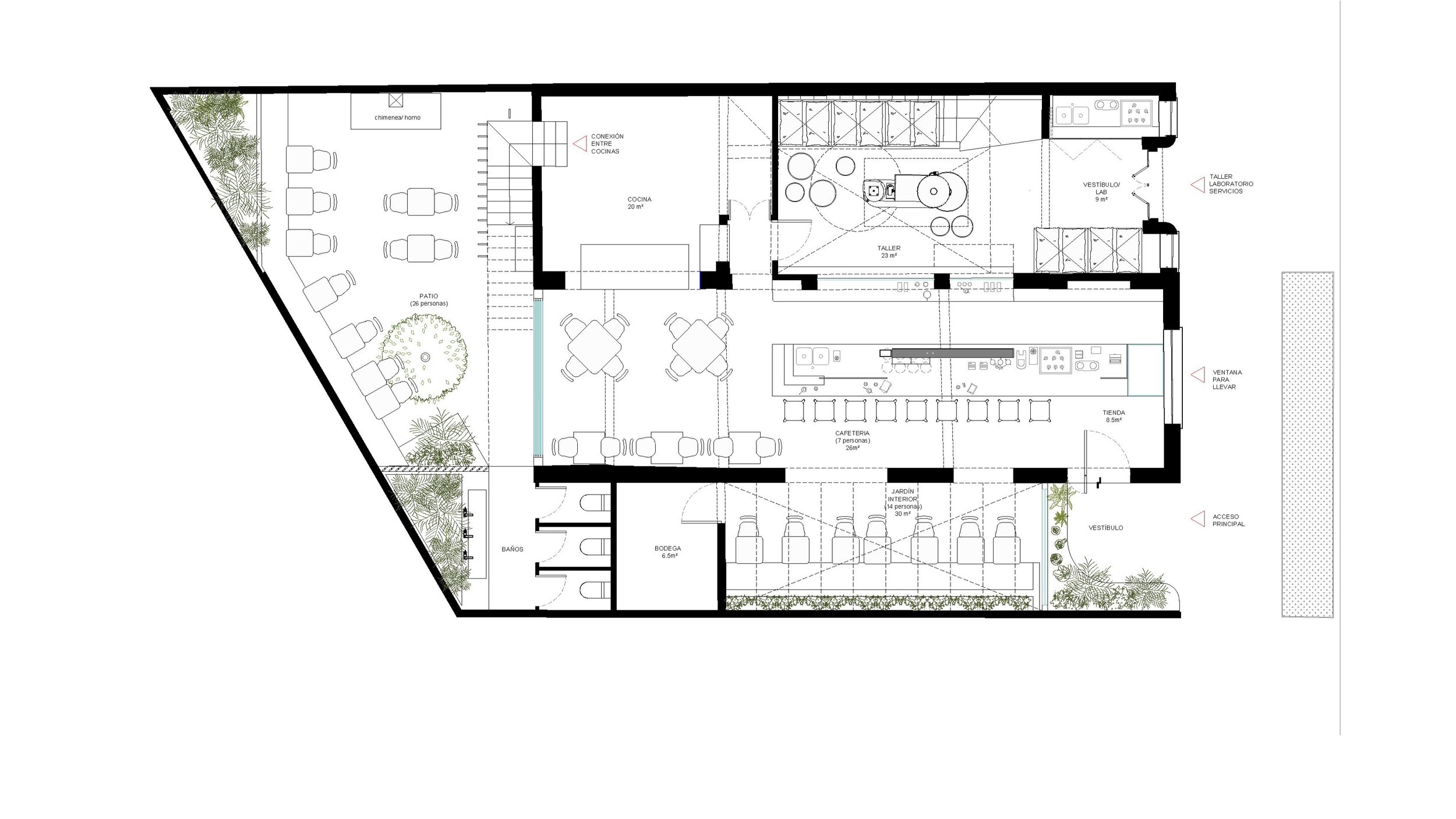
PROGRAM Coffee lab+ coffee shop + restaurant

YEAR 2019

STATUS Renovation and Interior Desing

AREA 680 m2

CLIENT Private

TEAM Collaboration with Solvar office

THE GOAL

The project consisted of the renovation of a house located in La Condesa, near the Parque de México.

Therenovation was sought in a cafeteria, restaurant and coffee laboratory on the ground floor. Upstairs there would be a bar that would open from 7 in the afternoon. The top floor is dedicated to private office space and staff rest.

The design proposal is based on the use of natural materials and the search for a cozy and at the same time minimal atmosphere.

Architecture floor plans

Ground level floor plan

Upper floor plan

Previous
Previous

Adidas: For the Oceans

Next
Next

Tapalpa wood cabin